Mástil captador con cable HVI light plus para cubierta metálica y soporte de conductor para vigas
El kit completo de mástil captador para montaje superior sobre cubierta metálica / soporte de conductor para vigas se utiliza para el tendido bajo la cubierta del cable HVI light plus.
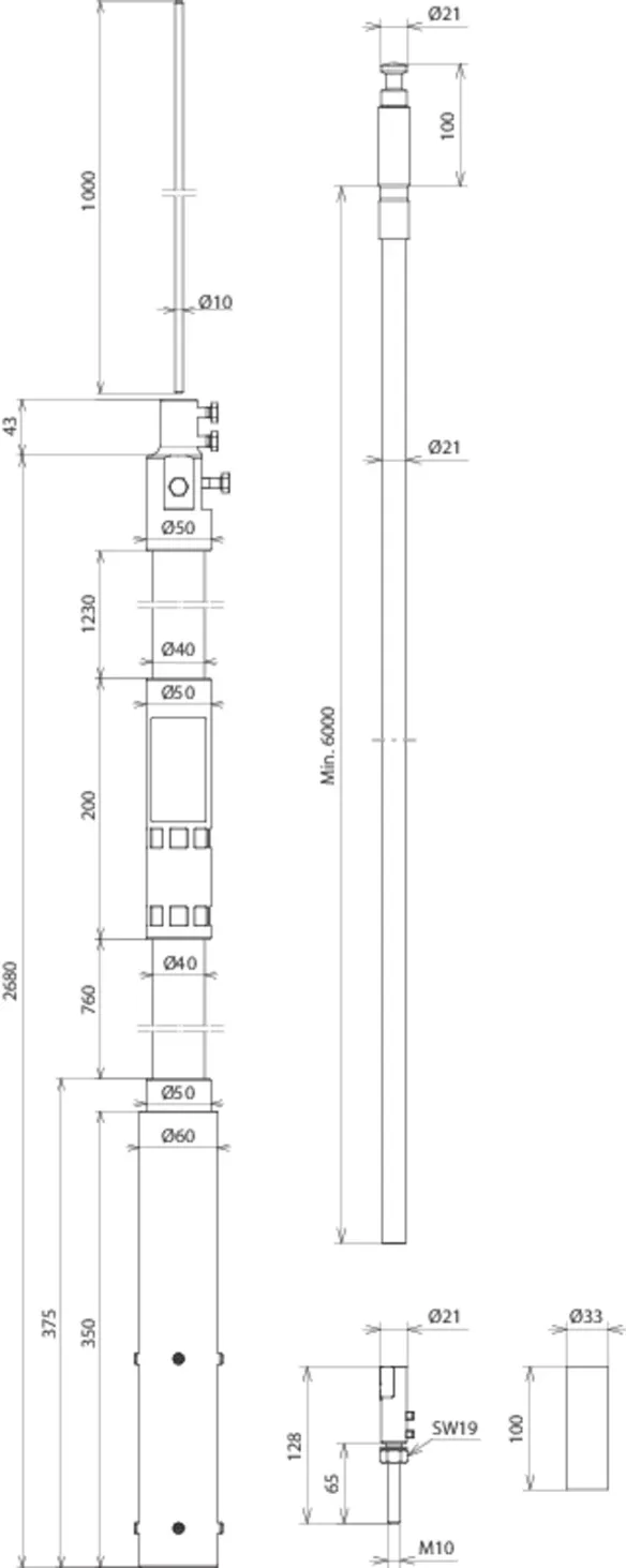
El kit consta de: – Punta captadora INOX, Ø10 mm, longitud 1000 mm – Tubo autosoportado de PRFV/Al, Ø40/50/60 mm, longitud de 2680 mm – Cable HVI light plus (preconfeccionado para tendido interior en el tubo)
1 Producto
N.º art.819688
HVI LI PL L6M SR2680 FSP1000 GFK AL V2A
GTIN4013364499782,
N.º de arancel aduanero (EU):85389099,
Peso bruto:
10.40kg,
Empaquetado:1.00unidad(es)
Cable HVI light plus en tubo autosoportado de 2680 mm con punta captadora de 1000 mm Instalación captadora aislada por ejemplo, para sistemas de emisión y recepción (antenas parabólicas o terrestres). Diseño visualmente adaptado gracias al tendido interior del cable HVI light plus en el tubo autosoportado Electrodo de dispersión aislado resistente a la alta tensión para respetar la distancia de separación respecto de los componentes conductores según DIN EN 62305-3 (VDE 0185-305-3) Distancia de separación equivalente s =< 60 cm (en aire) o s =< 120 cm (en material de construcción sólido). Los tubos autosoportados están dimensionados según el Eurocódigo 1 (DIN EN 1991-1-4 + DIN EN 1991-1-4/NA). Cable HVI light plus tendido en tubo autosoportado, con terminal interno especial y punta captadora con Ø10 mm y longitud 1000 mm
Material del tubo autosoportado: PRFV / Al
Longitud del tubo autosoportado: 2680 mm
Longitud de transporte: 2680 mm
Color del cable: gris ●
Material del cable: Cu
Distancia de separación equivalente s (en aire): ≤ 60 cm
Longitud mínima de pedido: 6 m
Longitud máx. de pedido: 70 m
Referencia normativa: DIN IEC/TS 62561-8 (VDE V 0185-561-8)
Producto DEHN
Tipo: HVI LI PL L6M SR2680 FSP1000 GFK AL V2A
art. no.: 819688
o equivalente