Soporte para elementos captadores sobre tejas curvas y caballetes

Para varillas captadoras o distanciadores con soporte de conductores, para la protección de módulos de térmica solar o generadores fotovoltaicos u otras estructuras situadas en tejados inclinados.
El montaje del soporte se efectúa con banda de apriete. Con una brida fijada en una banda de apriete y otra brida ajustable, se puede montar el soporte en las diferentes formas de las tejas curvas.

Las puntas / varillas captadoras o distanciadores deben pedirse por separado.

Los soportes en combinación con las puntas / varillas captadoras metálicas están dimensionados según el eurocódigo 1 (DIN EN 1991-1-4 + DIN EN 1991-1-4/NA).

Versión simple

Para puntas captadoras (longitud 1000 mm) o distanciadores en poliéster reforzado con fibra de vidrio Ø10 mm.

1 Producto

N.º art. 123110 HA 10 1F FG120.300 V2A

GTIN 4013364147911, N.º de arancel aduanero (EU): 85389099, Peso bruto: 321.00 g, Empaquetado: 1.00 unidad(es)


Figuras

Más información

Soporte para puntas captadoras o barras distanciadoras diseño simple INOX
Soporte para puntas captadoras o barras distanciadoras de PRFV Ø10 mm
con soporte de conductores, para la protección del módulo de térmica solar
o de generadores fotovoltaicos u otras estructuras en tejados a dos aguas.
El montaje del soporte se basa en la técnica de banda tensora.
Con una brida fijada en la
banda tensora y otra brida ajustable, se puede montar
el soporte en las diferentes formas de las
tejas curvas.
Las dimensiones de los soportes en combinación con puntas captadoras (longitud 1000 mm, D 10 mm)
y barras distanciadoras de PRFV (longitud 420 mm, D 10 mm) se realizan según
el Eurocódigo 1 (DIN EN 1991-1-4 + DIN EN 1991-1-4/NA).
Margen de apriete Rd: 10 mm
Margen de sujeción: 120-300 mm

Producto DEHN
Tipo: HA 10 1F FG120.300 V2A
art. no.: 123110
o equivalente

Certificados

 

Datos técnicos

Margen de apriete Rd 10 mm
Margen de sujeción 120-300 mm
Material del casquillo de fijación INOX

Se ha añadido el artículo 123110 a favoritos.

El artículo 123110 ha sido añadido a la cesta de compra.


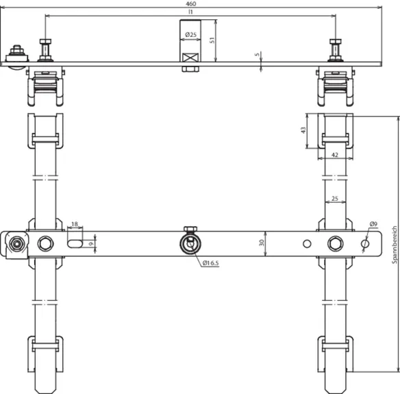
Versión doble

Para varillas captadoras Ø16 / 10 mm, máx. longitud de 1,5 m, incl. caballete de sujeción para la conexión de conductores redondos Rd 6-10 mm.

1 Producto

N.º art. 123116 HA 16 2F FG120.300 V2A

GTIN 4013364147966, N.º de arancel aduanero (EU): 85389099, Peso bruto: 1.11 kg, Empaquetado: 1.00 unidad(es)


Figuras

Más información

Soporte para puntas captadoras o barras distanciadoras diseño doble INOX
Soporte para puntas o varillas captadoras de Ø16/10 mm,
longitud máx. 1,5 m, para la protección del módulo de térmica solar
o de generadores fotovoltaicos u otras estructuras
en tejados a dos aguas. El montaje del soporte se basa en la técnica de
banda tensora. Con una brida fijada en la
banda tensora y otra brida ajustable, se puede montar
el soporte en las diferentes formas de las
tejas curvas.
Las dimensiones de los soportes se realizan según el Eurocódigo 1
(DIN EN 1991-1-4 + DIN EN 1991-1-4/NA).
Margen de apriete Rd: 16 mm
Margen de sujeción: 120-300 mm
Norma: EN 62561-1

Producto DEHN
Tipo: HA 16 2F FG120.300 V2A
art. no.: 123116
o equivalente

 

Datos técnicos

Margen de apriete Rd 16 mm
Margen de sujeción 120-300 mm
Distancia de montaje (l1) aprox. 280 / 350 / 420 mm
Material del casquillo de fijación INOX

Se ha añadido el artículo 123116 a favoritos.

El artículo 123116 ha sido añadido a la cesta de compra.


back to top