Soporte de conductores para vigas

Para la fijación lateral de
  • un cable HVI light plus tendido en tubo autosoportado (Ø40 mm)
  • Cable HVI tendido en tubo autosoportado (Ø50 mm)
  • También para fijación de los tubos autosoportados y del tendido bajo el tejado del cable HVI o del cable HVI light plus.
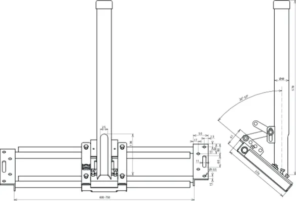
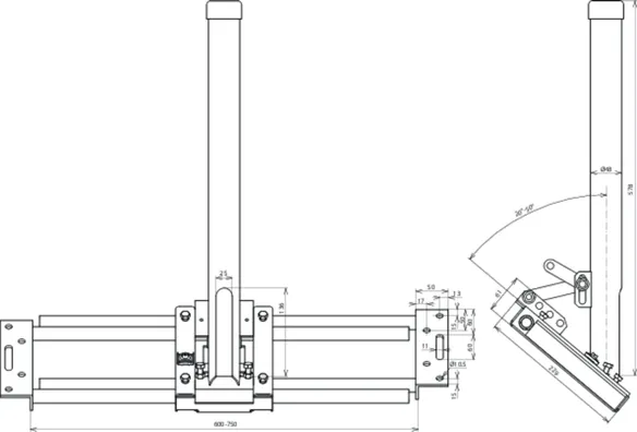
El soporte de conductor para vigas puede montarse solo en construcciones apropiadas y con capacidad de carga.El soporte de conductor para vigas se ha concebido para pares de fuerzas de hasta 320 Nm.El montaje se efectúa desde el exterior y se atornilla directamente a las traviesas a través de los listones horizontales.El soporte de conductor para vigas no puede utilizarse en sistemas de aislamiento para tejados y solo limitadamente en tejas planas.Nota: La situación del montaje tiene que aclararse con el constructor del edificio.

1 Producto

N.º art. 105240 DASH D48 AS600.750 STTZN

GTIN 4013364135116, N.º de arancel aduanero (EU): 73089098, Peso bruto: 7.23 kg, Empaquetado: 1.00 unidad(es)


Figuras

Más información

Soporte de conductores para vigas St/tZn
Soporte de conductores para vigas
para fijar varillas captadoras y tubos de soporte
Con traspaso de cable para los sistemas DEHNconductor
(incl. tornillos de fijación)
Material : St/tZn
Margen ajustable: 600-750 mm
Pendiente del tejado: 20-50°
Diámetro Ø del tubo de conexión: 48 mm
Diámetro Ø del paso de cable en el tubo de conexión: 25 mm

Producto DEHN
Tipo: DASH D48 AS600.750 STTZN
art. no.: 105240
o equivalente

 

Datos técnicos

Material St/tZn
Margen ajustable 600-750 mm
Pendiente del tejado 20-50°
Diámetro Ø del tubo de conexión 48 mm
Tornillo de fijación l 8 x 120 mm

Se ha añadido el artículo 105240 a favoritos.

El artículo 105240 ha sido añadido a la cesta de compra.


back to top